Insulated Concrete Forms (ICFs) are the Foundation of Our Approach to Thoughtful Building
Buildings are now being constructed to a new standard, and that standard is Net-Zero. Net-Zero structures built with Insulated Concrete Forms maximize the use of on-site renewable energy, thereby producing more energy than they consume over the course of a year. Insulated Concrete Forms (ICF) play a critical role in allowing a Net-Zero structure to maximize its use of energy.
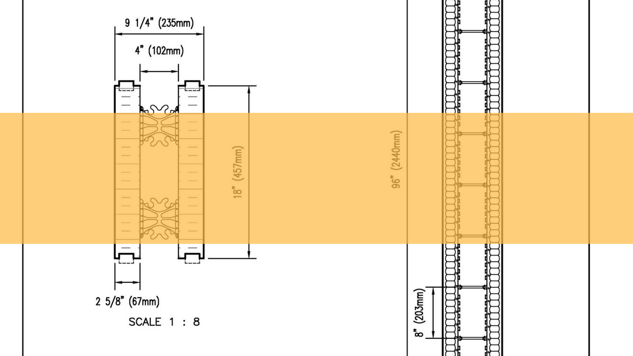
NUDURA standard form unit | A4A01 | Integrated building technology
NUDURA Insulated Concrete Forms offer a variety of superior benefits when building a structure. NUDURA Forms consist of two panels of Expanded Polystyrene (EPS) foam that are 2 5/8” (67 mm) in thickness and connected together with our patented web system that is made of 100% recycled material. NUDURA Forms are stacked, steel reinforced and filled with concrete, which completes the building envelope of your residential structure in one building step.
NUDURA Forms are available in a variety of shapes and sizes to accommodate all types of building requirements and designs. NUDURA also provides waterproof membrane and bracing to complete the building process, allowing you to not have to source additional materials to complete your job. NUDURA also offers a variety of accessory products that complement our line of insulating concrete form products.
Insulated Concrete Forms (ICFs) from NUDURA provide design professionals, architects, home owners and contractors a more efficient way to build Insulated Concrete Form structures. Building with ICFs allow concrete homes and commercial buildings to be built stronger, more energy efficient, more comfortable and more environmentally friendly. ICFs provide greater energy solutions for any structure. A NUDURA home or commercial buildings superior energy performance is the result of NUDURA forms working in conjunction with the thermal mass of a solid concrete core to provide one of the most energy efficient and airtight wall systems available today.
Benefits for building with Insulated Concrete Forms (ICFs)
- Save Up to 70% Energy Costs
- 10% Lower Insurance Premiums
- Bullet Proof
- Increased Security
- 75% Less Outside Air Infiltration
- Up to R-40 Wall Insulation Value
- 10x Stronger Than Wood
- 3x Quieter Than Wood
- 4 Hour Fire Rating
ICF Specialist built a 2200 sq. ft. home in one day with only a 13-man crew.
Learn about the extensive line of NUDURA products from Standard Forms, 45 Degree Corners, Brick Ledge, Optimizers and more!
See how This Old House used ICFs to create an addition to a 300 year old historic property.
Green and Sustainable Insulated Concrete Form Construction
In the News
Nudura Insulated Concrete Forms (ICFs)
Learn more about innovation and sustainability in the following articles and videos featuring NUDURA Insulated Concrete Forms (ICFs).
